事件类型:
Data Breach
Data Breach
报告时间:
2025-11-23 07:32:13
2025-11-23 07:32:13
原文内容:
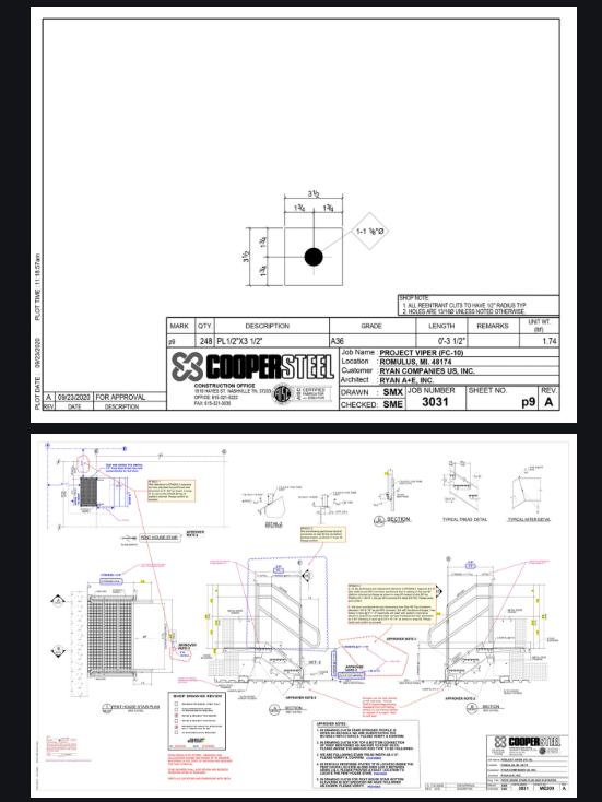
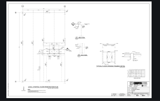
网络威胁行为者声称拥有breached铜钢制造商的数据库。它由330 GB的数据集组成,包含其FTP服务器的完整镜像,其中包含当前项目文件、Tekla 3D模型、PE盖章的工程图纸以及来自主要工作的材料,包括Project ROCKY、Publix Greensboro RDC和Amazon CMH5。卖家声称所有文件都是最近的,并通过托管在BTC或XMR要价28,500美元。
网络威胁行为者声称拥有breached铜钢制造商的数据库。它由330 GB的数据集组成,包含其FTP服务器的完整镜像,其中包含当前项目文件、Tekla 3D模型、PE盖章的工程图纸以及来自主要工作的材料,包括Project ROCKY、Publix Greensboro RDC和Amazon CMH5。卖家声称所有文件都是最近的,并通过托管在BTC或XMR要价28,500美元。
被攻击国家/地区:
USA
USA
被攻击行业:
Building and construction
Building and construction
被攻击组织:
copper steel fabricators
copper steel fabricators
被攻击域名:
coopersteel.com
coopersteel.com
攻击组织:
zestix
zestix
信息来源:
openweb
openweb
原文链接:
点击访问
点击访问
原图
© 版权声明
文章版权归作者所有,未经允许请勿转载。
THE END


























请登录后查看评论内容